不動産情報
- 土地
- 仙台・仙台近郊
【ハーモニータウン しあわせの杜】19-4
-
所在地
大和町杜の丘北部土地区画整理事業(ハーモニータウンしあわせの杜)
-
学区
大和町立小野小学校・大和町立宮床中学校
-
交通
仙台市営地下鉄南北線「泉中央駅」徒歩121分
ハーモニタウン中央バス停徒歩12分
-
販売価格
1,650万円
-
土地面積
206.35㎡(62.42坪)
《第3期分譲》
自然豊かで周辺に生活利便施設が揃う住環境♪
「安心」「安全」で子育て世代にうれしい街が誕生!
【教育・行政機関】
〇杜の丘保育園 約1,120~1,200m(徒歩14~15分)
〇大和町立小野小学校 約1,720~1,800m(徒歩22~23分)
〇大和町立宮床中学校 約3,520~3,600m(スクールバス利用)
【商業施設】
〇ヤマザワ杜のまち店 約820~900m(徒歩11~12分)
〇ファミリーマート宮城大和杜のまち店 約720~800m(徒歩9~10分)
- 土地
- 仙台・仙台近郊
【ハーモニータウン しあわせの杜】19-4
-
所在地
大和町杜の丘北部土地区画整理事業(ハーモニータウンしあわせの杜)
-
学区
大和町立小野小学校・大和町立宮床中学校
-
交通
仙台市営地下鉄南北線「泉中央駅」徒歩121分
ハーモニタウン中央バス停徒歩12分
-
販売価格
1,650万円
-
土地面積
206.35㎡(62.42坪)
《第3期分譲》
自然豊かで周辺に生活利便施設が揃う住環境♪
「安心」「安全」で子育て世代にうれしい街が誕生!
【教育・行政機関】
〇杜の丘保育園 約1,120~1,200m(徒歩14~15分)
〇大和町立小野小学校 約1,720~1,800m(徒歩22~23分)
〇大和町立宮床中学校 約3,520~3,600m(スクールバス利用)
【商業施設】
〇ヤマザワ杜のまち店 約820~900m(徒歩11~12分)
〇ファミリーマート宮城大和杜のまち店 約720~800m(徒歩9~10分)
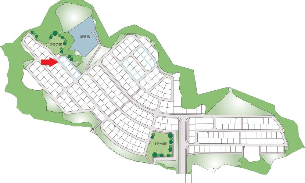
区画図
周辺環境
-
大和町立小野小学校
1700m (徒歩23分) -
大和町立宮床中学校
3600m (徒歩51分) -
もみじヶ丘保育所
1600m (徒歩23分) -
杜の丘保育園
1000m (徒歩14分) -
もみじヶ丘幼稚園
1600m (徒歩23分) -
ファミリーマート 宮城大和杜のまち店
800m (徒歩11分) -
ヤマザワ 杜のまち店
900m (徒歩12分) -
コストコホールセール 富谷倉庫店
1000m (徒歩13分)
物件概要
-
所在地
大和町杜の丘北部土地区画整理事業(ハーモニータウンしあわせの杜)
-
価格
1,650万円
-
交通
仙台市営地下鉄南北線「泉中央駅」徒歩121分 、ハーモニタウン中央バス停徒歩12分
-
土地面積
206.35㎡(62.42坪)
-
都市計画
市街化区域
-
用途地域
第1種低層住居専用地域
-
接道状況
南西側:6.0m
-
建ぺい率
40%
-
容積率
60%
-
土地権利
所有権
-
地目
宅地
-
電気
電気
-
ガス
--
-
上水道
公営水道
-
下水道
公共下水、側溝
-
引渡し日
相談
-
現況
更地
-
取引形態
売主
-
建築条件
あり(株式会社高勝の家)
-
小学校区
大和町立小野小学校(1720m)
-
中学校区
大和町立宮床中学校(3520m)
-
その他
--
-
情報更新日
2026年5月1日
-
情報更新予定日
2026年5月29日
所在地マップ
この物件を問い合わせる
- 入力
- 確認
- 完了
※必須項目
各項目を入力のうえ、「確認する」ボタンを押してください。


